
Before recent renovations, the building had a boxy appearance, with prominent concrete pillars drawing attention at its base. The colour could be described as a pale, reddish-brown. Now, the building looks livelier and more vibrant to visitors. This is due not only to structural changes but also to a stronger, more intense reddish-brown shade. The appearance has become more multidimensional, especially because stacked balconies were added, and windows were enlarged.
Jukka Perttu, Helsingin Sanomat 2nd February 2022
The multistorey apartment building Postipuiston Tähti was originally designed as office building for Maaliikenne Ltd by the Finnish architectural office Toivo Korhonen in the late 1970s. The building had eight storeys, of which the top floor with a slightly smaller gross area. Before the alteration and renovation project started, the building was recently used as a reception centre.
The project started with partial demolition of the building. The load bearing structure, staircase and lift shafts were preserved. The lightweight eight floor was also demolished, after which two storeys were added bringing the number of storeys to nine in total, and an annex for commercial use was constructed on the south-west corner of the building. The original narrow windows were enlarged to reach the floor.
The building has load bearing facades, concrete columns and L-beams on the building frame, and hollow-core slabs intermediate floors. The load bearing façade has a 150 mm thick concrete inner leaf.
The building is situated on a hill, on top of which it used to dominate and overlook the surroundings, consisting of low industrial halls and vaste truck parking areas. Nowadays, the urban structure is tighter with a newly built neighbourhood having been formed around the building.
The large balconies are supported from the ground because the building frame couldn’t have supported the weight of suspended balconies required by the town plan. The original rock formations flanking the street-side entrance staircase emphasise the building’s connection with the surrounding rocky terrain. The majestic staircase leading to the entrance was rebuilt in its original place.
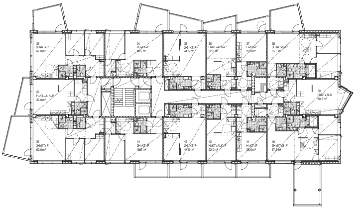
- Structural depth approximately 19 metres
- Length around 44 metres
- 99 apartments
- Approximately half of the net floor area is reserved for family housing.






Building before redevelopment

