
Kaariranta Service Housing
A piggery of the local dairy used to be situated on the site where Kaariranta Service Housing was built. The location is one of the best in town. It's on the bank of river Punkalaidun next to Särkimyssilta bridge and near to the town centre. Scenic views open toward the river and the medieval Church of Saint Catherine of Alexandria.
The buildings are made of red bricks throughout. In addition to regular bricks, chamfered bricks have been used in parts of the façades. The roof that covers 3000 m² is made of clay tiles and was granted Roof of the Year award in 1998. Bricks from the demolished piggery were put to use for constructing the walls that surround the yards on the side of the river. Roof tiles were used to construct the canopies. Wooden parts of the façades were treated with wood tar and linseed oil. The plan received the best score in the quality assessment of The Housing Fund of Finland in 1996.
- 35 apartments, of which 20 in the serviced part and 15 rented apartments.
- Published: Monument 30 (1999), Darlinghurst, Australia
- Displayed in the Finland Builds 9 exhibition and book, 1998
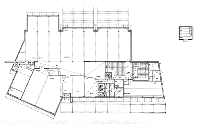
Huittinen City Library
During the competition a grass thatch was considered for the library, but financial reasons caused a more conventional steel roof to be chosen. In keeping with the original idea, gratings border the foliage, which also gives shade from the sun. Bricks on the façades, here laid inside out, connect the library to the neighbouring service apartments. As in the other building, wooden parts have been treated with wood tar and linseed oil. However, pigment wasn't applied, and consequently the panels, pergolas and gutters have attained a natural grey colour.
- First prize in an invited competition 1999.
- Total gross area 1500 m².













